C07
Pris
Soverom
BRA-i
TBA
Status
Bolig
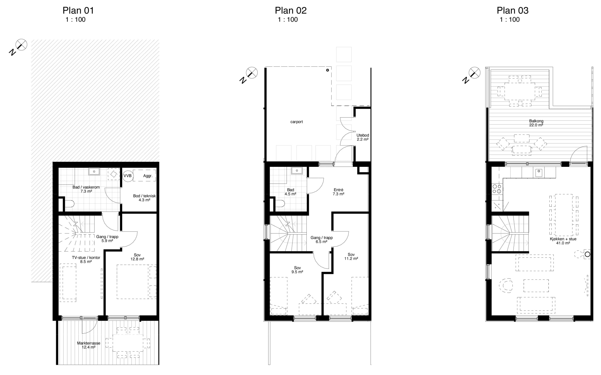
Velkommen til Hus C
Husene i denne rekken vil ikke få noen hus foran seg og kan nyte godt av den rolige og fantastiske utsikten mot skog, jorder og fjell. Husene inneholder tre romslige soverom, kjellerstue/kontor, to bad, stor balkong med direkte utgang fra kjøkken og en stor stue med 4 meters takhøyde.
I husets første etasje finner du markterrasse, med kort vei til en av Plommehagens mange lekeplasser, du finner tvstue/kontor, hovedsoverom, bad/vaskerom og en bod/teknisk rom. Videre går vi opp til husets andre etasje hvor du finner to soverom, entre og bad. Når du kommer opp i tredje etasje har du stue og kjøkken med 4 meters takhøyde, fantastisk utsikt og en stor balkong med utgang fra kjøkkenet.
Et fantastisk hus med nydelig beliggenhet!
Carport
1
BRA-e
Dokumenter
Last ned ønskede dokumenter ved å klikke på linkene under.
Kontakt megler
Er det noe du lurer på om tomtene eller rekkehusene, eller har noen spørsmål om prosjektet? Nøl ikke med å ta kontakt med en av oss i dag, vi hjelper deg gjerne.
Ha en fin dag, hilsen Keven og Ole.
Keven Frantzen
Eiendomsmegler
Ole Grongstad
Eiendomsmegler
