B08
Pris
Soverom
BRA-i
TBA
Status
Bolig
Velkommen til Hus B
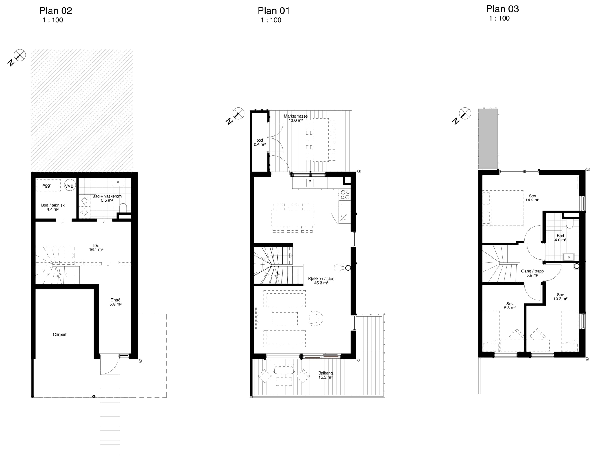
Husene i denne rekken er fra 121-123 kvm og strekker seg over tre etasjer, med alle soverom på samme plan, en stor stue og kjøkken etasje og en romslig hall/entre med flere møbleringsmuligheter! Muligheten er mange i dette huset!
I første etasje finner du en overbygd carport. Videre går du inn i første etasje, hvor du finner entreen og videre inn i det vi har kalt hall, et stort rom med flere muligheter! I etasjen finner du også bad med plass til vaskemaskin og tørketrommel og en bod/teknisk rom. Trappen tar deg opp til husets andre etasje, som inneholder stue og kjøkken. Fra kjøkkenet har du direkte utgang til markterrasse med god plass til utemøbler og grill. På motsatt side finner du en romslig vestvendt balkong som har sol hele dagen!
I husets øverste etasje finner du bad og husets tre soverom, som alle er av god størrelse.
Carport
1
BRA-e
Dokumenter
Last ned ønskede dokumenter ved å klikke på linkene under.
Kontakt megler
Er det noe du lurer på om tomtene eller rekkehusene, eller har noen spørsmål om prosjektet? Nøl ikke med å ta kontakt med en av oss i dag, vi hjelper deg gjerne.
Ha en fin dag, hilsen Keven og Ole
Keven Frantzen
Eiendomsmegler
Ole Grongstad
Eiendomsmegler
