A01
Solgt
Velkommen til Hus A
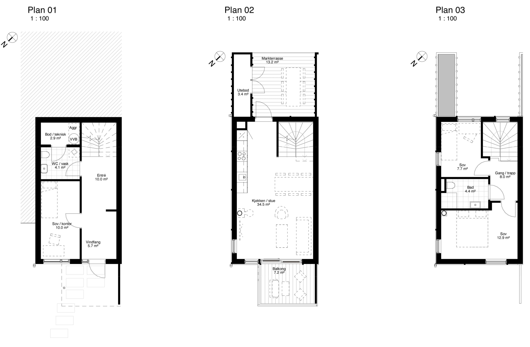
De moderne rekkehusene i Hus A strekker seg over tre etasjer, med tre soverom, bad, wc/ vaskerom og gode og romslige utearealer. Husene vender mot det sosiale og barnevennlige gatetunet, og du finner en småbarnslekeplass med benker og sandkasse rett utenfor døren.
I boligens første etasje kommer du inn i en romslig entré med god plass til oppbevaring. I denne etasjen finner du også bad, bod og vaskerom, samt et soverom/hjemmekontor. Videre kommer du opp i boligens andre etasje, hovedetasjen, hvor du finner en stor og åpen stue/kjøkkenløsning med direkte utgang til stor markterrasse. I denne etasjen har du også balkong på motsatt side, hvor du har solen hele dagen.
I tredje etasje finner du to romslige soverom og bad. Hovedsoverommet får nydelig utsikt og har god plass til garderobeløsninger.
Oppstillingsplass
1
BRA-e
Dokumenter
Last ned ønskede dokumenter ved å klikke på linkene under.
Kontakt megler
Er det noe du lurer på om tomtene eller rekkehusene, eller har noen spørsmål om prosjektet? Nøl ikke med å ta kontakt med en av oss i dag, vi hjelper deg gjerne.
Ha en fin dag, hilsen Keven og Ole.
Keven Frantzen
Eiendomsmegler
Ole Grongstad
Eiendomsmegler
